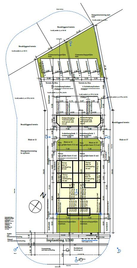
Residentie De Hoef
Kerkstraat 13-15, 2235 Hulshout
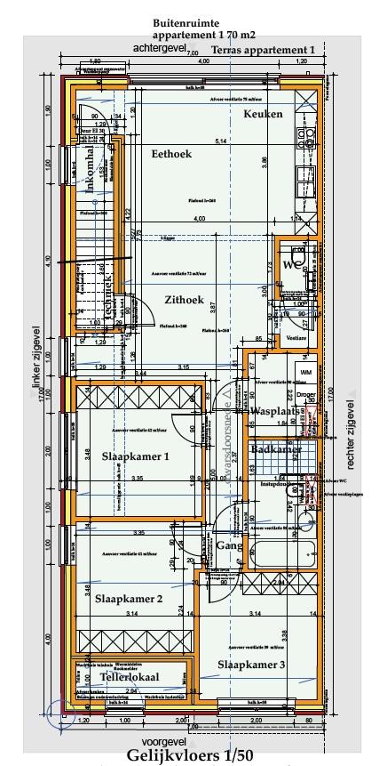
Indeling
| Nr. | Type | Prijs | Slk. | Terras | Woonopp. | Grondopp. | Plan | ||
|---|---|---|---|---|---|---|---|---|---|
| Gelijkvloers app. | € 329.000 | 3 | - | 119 m² | - | - | Meer info | ||
| verkocht | Appartement | info op kantoor | 2 | - | 93 m² | - | - | ||
| verkocht | Appartement | info op kantoor | 1 | - | 72 m² | - | - |